產品介紹:
SDGreen-12系列環網開關柜是SF6氣體絕緣的金屬共箱式封閉開關設備,該設備可由負荷開關單元、負荷開關熔斷器組合電器單元、真空斷路器單元、母線進線單元的模塊組成。采用一系列先進技術和材料,具有優異的電氣性能和機械性能,受環境和氣侯影響小,體積小巧,易于安裝,操作方便,無需維護,且具有靈活的組合方式。清晰直觀的設計保證操作簡單、直接。饋線接線容量大,適合多種接線系統。
單元定義:
產品特點:
操作安全
通過以下安全措施,我們可為用戶提供特別的安全保障:
◆ 一體化三工位負荷開關
◆ 斷路器采用負荷開關替代隔離開關,更安全可靠
◆ 一次側全密閉設計提供意外接觸的保護
◆ 滿足五防要求的機械聯鎖
◆ 帶電顯示器可提供進出線路帶電指示
運行可靠
全密閉設計,所有10kV開關及母線帶電體均密封在3mm不銹鋼板焊接成的氣箱中;配硅橡膠電纜插頭,實現電纜頭全絕緣全密封,從而不受灰塵、潮濕、小動物等外界環境影響
◆ 彈簧儲能操作機構,可人工或電動操作
◆ 面板模擬線圖提供開關位置指示
◆ 柜體用鍍鋅板制作,表面靜電噴涂,增強抗腐蝕性能
◆ 壓力表監視箱體內SF6氣體安全壓力范圍
經濟性
◆ 免維護
◆ 高度可靠
◆ 使用壽命可達20年
方案靈活
◆ 多種進線方式,可實現左、右、上或前進線
◆ 多種組合方式,各單元之間可實現任意組合
◆ 采用絕緣母線,可實現前后并柜或左右并柜
◆ 設計方案靈活
應用廣泛
◆ 饋出線容量大、占地小,適合多種應用需求
設計說明:
SDGreen-12系列環網開關柜安裝在一個鍍鋅板框架上,開關單元在SF6氣箱內,氣箱由抗腐蝕和無磁性3mm厚不銹鋼板制成。SF6氣箱是一個“密封壓力系統”,在正常工作環境下可運行20年。SF6氣體正常工作時壓力為0.15~0.4bar。氣箱裝有壓力釋放裝置,當壓力過高時,保證氣體能從底部或后部釋放。
開關單元
負荷開關采用同軸旋轉雙斷點方式,通過同一操作孔與滑板配合進行功能操作,因此開關在任一時刻只能處于“合閘、分閘、接地”三種狀態的其中之一,徹底避免誤操作。
操作機構
開關的操作機構安裝在氣箱外的前部,經特殊工藝處理,防銹蝕,方便手動操作及維護,并很容易實現電動操作。
真正滿足需求的電纜室
電纜連接室空間大,套管為標準式設計,實現與所有歐式標準電纜插頭的配合。正常情況下每個負荷開關單元可接1~3回出線,特殊設計型可接4~6回出線。真空斷路器單元可接1~2回出線。
壓力釋放裝置
壓力釋放裝置與電纜室之間用金屬板隔開,如氣箱內壓力過高時,裝置內防爆膜片破裂,以釋放壓力。
電纜連接
選用國際標準通用規格套管(符合DIN47636標準或美國標準),便于用戶選擇相應的電纜附件。采用T形前、后電纜插頭連接,歐式螺栓逐級緊固式結構,前插頭與套管的連接采用M16螺栓。
避雷器連接
負荷開關單元可加裝T形后插式硅橡膠全密封金屬氧化鋅避雷器。當電纜回路數較多,空間不夠時可采用π形后插式避雷器。
設計說明:
聯鎖機構
開關內部的聯鎖機構能有效防止誤操作,并確保電纜室只有在開關處于“接地”狀態,才能進入,并可加明鎖,鎖定在不同狀態。
輔助開關
負荷開關、接地開關可根據需要配置能同步反映開關位置狀態的輔助開關。
熔斷器
SDGreen-12系列開關熔斷器更換直接、簡便。熔斷器置于絕緣管內,絕緣管位于SF6的金屬氣箱內,這種設計有如下優點:
◆ 熔斷器蓋及密封裝置在電場最弱部分
◆ 無導電物質能附在熔斷器組件上
◆ 在SF6氣體中的部分完全受保護
◆ 熔斷器蓋無需額外的絕緣彈簧儲能操作機構和聯動跳閘裝置保證負荷開關三相在任一相熔斷器熔斷時同時自動斷開。
開關測試
SDGreen-12系列開關通過國家電力工業部電氣設備質量檢驗測試中心檢測,產品符合以下主要標準:GB/T11022、IEC 60694、IEC 60265、IEC 60420、IEC 60056、IEC60298、IEC 60129。
使用條件
SDGreen-12系列開關柜適合在- 40℃ ~ +50℃的溫度范圍內使用。10kV帶電體位于SF6密閉氣箱內,硅橡膠插頭實現電纜與開關的連接,形成全絕緣、全密封結構,整個系統不受環境因素的影響,如潮氣、灰塵、腐蝕性氣體等,SF6氣箱由不銹鋼材料制成,保證開關免維護,使用壽命長。
表面保護
環網柜框架采用鍍鋅板,表面靜電噴涂,以防腐蝕。柜體正面操作面板有靜電噴涂層。
標準涂層:
◆ 操作屏RAL7035(白色)
◆ 電纜室門RAL7035(白色)
◆ 開關側板RAL7035(白色)
負荷開關單元 C
該開關可分為單體、單體雙套管出線、二單元、三單元、四單元、五單元標準型和帶有側進線套管型,采用共用一個SF6氣箱的結構,在各單元之間不需要母線外部連接,因此,結構相對簡化,便于安裝,更為安全;雖然采用了氣箱一體結構,每個單元仍有獨立間隔。六單元以上采用絕緣母線并柜實現,可前后或左右并柜,柜型是標準型上側帶母線套管。
標準配置
◆ 630A母線
◆ 三工位負荷/接地開關
◆ 彈簧操作機構
◆ 負荷開關和接地開關位置指示
◆ 位于前部水平布置的出線套管
◆ 進線/母線電壓指示器(單體或母線擴展型)
◆ 出線電壓指示器
◆ 所有的開關功能都可在面板上加裝掛鎖方式實現控制
◆ 接地開關與電纜室門的聯鎖
◆ SF6氣壓表
◆ 接地銅排
◆ 防爆泄壓閥
可選配置
◆ 短路、接地故障指示器
◆ 測量用環形電流互感器及電流表
◆ 計量用環形電流互感器
◆ 開關位置鑰匙鎖
◆ 電動操作機構
◆ 預留母線擴展
◆ 外部母線
電纜分支箱負荷開關單元1K24
該負荷開關為電纜分支箱專門開發設計,可分為單套管左側進線、單 套管右側出線,單套管左側進線,雙套管右側出線,采用一個SF6氣箱的結構,出線回路最多可分六路,因此結構相對簡化,便于安裝,更為安全;使單開關電纜分支箱體積更小,安裝更方便,可靠性更高的SF6負荷開關。
標準配置
◆ 630A母線
◆ 三工位負荷/接地開關
◆ 彈簧操作機構
◆ 負荷開關和接地開關位置指示
◆ 位于前部水平布置的出線套管
◆ 進線/母線電壓指示器(單體或母線擴展型)
◆ 出線電壓指示器
◆ 所有的開關功能都可在面板上加裝掛鎖方式實現控制
◆ 接地開關與電纜室門的聯鎖
◆ SF6氣壓表
◆ 接地銅排
◆ 防爆泄壓閥
可選配置
◆ 短路、接地故障指示器
負荷開關熔斷器組合電器單元F
組合電器單元用作1250KVA及以下容量的變壓器保護,本單元配有可以裝入熔斷器的絕緣套筒。絕緣套筒置入SF6氣箱之內,進一步提高其絕緣性能。接地開關閉合時,熔斷器下側同時接地,并實現熔斷器上側與電源的安全隔離,確保更換熔斷器時人員的安全。為了保證熔斷器在一相熔斷后,不致造成電氣設備缺相運行,本單元中配置了跳閘聯動機構,當脫扣觀察窗顯示紅色時,表示脫扣裝置動作或熔斷器熔斷并跳閘。本單元可以和其它單元組合,實現環網供電。
標準配置
◆ 630A母線
◆ 三工位負荷/接地開關
◆ 彈簧操作機構
◆ 負荷開關和接地開關位置指示
◆ 位于前部水平布置的出線套管
◆ 進線/母線電壓指示器(單體或母線擴展型)
◆ 出線電壓指示器
◆ 所有的開關功能都可在面板上加裝掛鎖方式實現控制
◆ 接地開關與電纜室門的聯鎖
◆ SF6氣壓表
◆ 接地銅排
◆ 防爆泄壓閥
可選配置
◆ 短路、接地故障指示器
◆ 測量用環形電流互感器及電流表
◆ 計量用環形電流互感器
◆ 開關位置鑰匙鎖
◆ 電動操作機構
◆ 預留母線擴展
◆ 外部母線
熔斷器更換步驟:
用開關操作手柄逆時針旋轉半圈,往外拉出更換熔斷器,安裝時對好掛鉤位置順時針旋轉。
真空斷路器單元V
采用彈簧式真空斷路器,機械壽命可達10000次;(保護動作快,分閘時間不大于30ms),易于實現級差配合。采用三工位負荷隔離開關。真空斷路器與負荷開關一同密封在3mm厚不銹鋼板制成的SF6氣箱內,整個系統實現全絕緣、全密封、免維護。
標準配置
◆ 630A母線
◆ 630A斷路器模塊ISM
◆ 控制器CM(DC24V操作電源)
◆ 三工位負荷隔離開關
◆ 自供電型電子式繼電保護器(SEG-WIM1,WIC1)
◆ 套管式保護CT
◆ SF6氣壓表
◆ 符合DIN47636標準的套管
◆ 接地與電纜倉門的閉鎖
◆ 真空斷路器開關位置輔助接點:2NO+2NC
◆ 標配操作電源(包括電源用PT、電源模塊、后備電池)
可選配置
◆ 連接母線
◆ 測量用電流互感器及電流表
◆ 輔助接點:負荷隔離開關位置 2NO+2NC、接地開關位置 2NO+2NC

附件概述:
1、 輔助接點
所有的負荷開關和接地開關都可配置指示開關位置的輔助接點,安裝在操作機構內部。
2、 遙控和遙測單元
SDGreen-12系列開關柜,可以配置集成遙控監測單元,這種預裝式產品可在工廠內完成組裝。
3、 帶電顯示器
開關單元的進出線套管上配有容性電壓指示裝置。每個帶電顯示器本身還帶有三相電壓核相引出點,配置核相器可用于核相。
4、 短路/接地故障指示器
為便于故障查找,開關單元可以配置短路/接地故障指示器。
5、 電纜連接
SDGreen-12系列開關柜配置DIN 47636型標準套管。電纜室倉門與接地開關互鎖。根據出線回路的多少可選擇不同的開關接線單元。
6、 壓力指示儀表
SDGreen-12系列開關柜都配置有SF6氣體壓力表
7、 鑰匙鎖
SDGreen-12系列開關柜可配置用于負荷開關、接地開關的鑰匙鎖。
8、 掛鎖
SDGreen-12系列開關柜可配置防止非工作人員操作的掛鎖。
9、 二次線小室/儀表箱
SDGreen-12系列開關柜可配置二次線小室/儀表箱,用于安裝二次配件、儀表。
附件概述
10、避雷器
SDGreen-12系列開關柜的可配置T形硅橡膠插頭式金屬氧化鋅避雷器。
◆ 持續運行電壓13.6kV
◆ U1mA.DC參考電壓≥25kV
◆ 0.75U1mA.DC泄漏電流<50μA
11、可分離連接器
T形前插頭和后插頭,PT肘型插頭,完成電纜連接的同時可安裝插入式金屬氧化鋅避雷器的π形插頭。
12、電流互感器
SDGreen-12系列開關柜可根據需要配置穿心式電流互感器,用于計量 / 測量。
◆ 二次輸出5A
◆ 精度0.2級或0.5級
斷路器單元采用內置式CT:
◆ 環氧樹脂澆注
◆ 二次引出線防潮設計
◆ 套管式安裝
13、電壓互感器
SDGreen-12系列開關柜可根據需要配置10kV全密閉電壓互感器,以滿足配網自動化的要求。可用于提供計量 / 測量用電壓信號、開關電動操作機構電源。
◆ 可根據需要選擇單 / 三相
◆ 變比:10/0.1/0.22kV
◆ 精度(AC100V):0.2級或0.5級
附件概述
14、專用并柜母線
全絕緣、全密封結構
15、熔斷器
用戶可根據使用需要自行配置亦可由我公司根據適用標準推薦配置并提供。我公司建議使用HVHRC熔斷器,其為帶溫度保險裝置的后備熔斷器,可防止熔斷器筒內異常過熱引起的設備損壞,訂貨時請標明變壓器的額定容量、工作電壓及熔斷器的額定電流。
16、保護繼電器
采用外供電、自供電多功能微機綜合保護裝置。緊湊設計,環境適應性強, 符合VDE 要求- 0435-303 ,IEC255,VDE0843。
◆ 不需外加電源
◆ 自帶安全保護運行模式
◆ 整定范圍寬,操作步驟簡單
◆ 采用微處理器處理信號,達到高精度參數測量
◆ 采用內部自檢測(看門狗)設計,操作可靠
◆ 保護功能可選
◆ 定時限過流保護(DMT)
◆ 反時限過流保護(IDMT)
◆ 反時限曲線可選:
一般反時限
非常反時限
極反時限
技術參數
其它數據
特殊條件
遵循IEC60694標準,對于有別于正常操作的條件下的特殊運行條件,制造商和用戶必須取得一致。如果涉及特殊惡劣的運行環境,則必須預先向制造商和供應商咨詢。當電氣設備安裝在海拔高度為1000米以上時,需特殊注明,以便制作時對壓力進行調整。
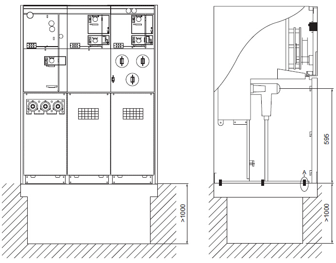
開關外形尺寸
開關地基尺寸
一次線圖

注:C: 負荷開關單元(單組套管出線) C+: 雙套管出線的負荷開關單元
D: 電纜進線單元,全密閉,不帶開關 -: 母線頂套管 +: 母線側套管
一次線圖

注:F: 負荷開關-熔斷器組合電器單元
V: 斷路器單元 C: 標準單套管負荷開關單元