
4.2 負荷開關技術參數

4.3 熔斷器技術參數

4.4 低壓裝置
風力變低壓側按用戶要求可具有失壓、欠壓保護功能,當高壓缺相時,低壓側能自動跳閘。按用戶要求,低壓側也可裝配電電器,控制電器、照明檢修變壓器等。另外也可具有遙測、遙訊功能。由于風力發電用組合式變壓器所處的環境惡劣,低壓主斷路器采用低溫型斷路器,有低溫實驗報告。其低溫實驗報告的技術參數為:
低溫試驗:試驗溫度-40±3℃,持續時間16h
低溫操作性能:120次,30次/小時
五、工作原理


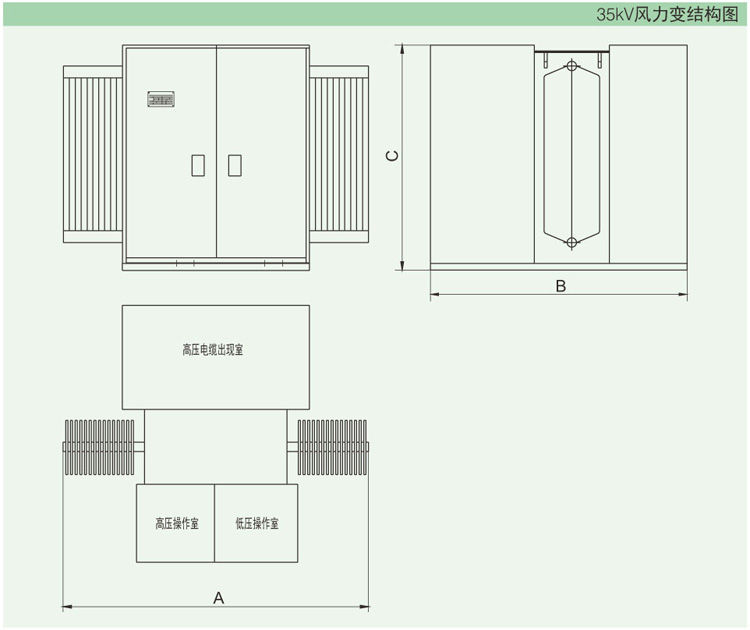
六、外形尺寸及結構
10kV風力變外形尺寸
注:表中重量及 外形尺寸 數據僅供參考,若有更改恕不另行通知。
35kV風力變外形尺寸
注:表中重量及 外形尺寸 數據僅供參考,若有更改恕不另行通知。
七、安裝與討調度
7.1 驗收
產品到位后,應檢查銘牌數據與訂貨合同是否相符;對照裝箱發貨清單檢查附件是否齊全;檢查運輸過程中是否有撞傷、贓物、異物,同時清除運輸輔助物;對不立即投入使用的風力變,應鎖好柜門,放置于安全地帶。
7.2 安裝平臺
風力變應安裝在水平混凝土臺面上,臺面應保證承受其重量。



